top of page

Concesionaria de autos
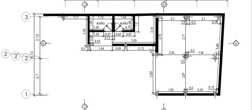
Nos toco el desafío de diseñar una Oficina para una concesionaria de autos muy conocida. La idea principal fue organizar en poco espacio la funcionalidad, confort y estética del lugar.
Servicio: Proyecto y construcción
Segmento de marca: Oficinas
Concepto: Concesionaria de autos.
Fecha de inicio: 2017
Fecha de finalización: 2017
Clientes: Manuel Martinez
País: Argentina
Ciudad: Berazategui
Estado del proyecto: completado
bottom of page


















